Hotel à Koléa, Tipaza
Hôtel classé catégorie 4*
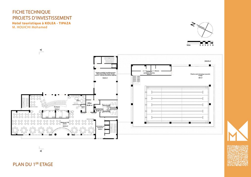
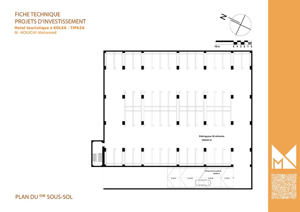
C’est un hôtel classé catégorie 4* avec une piscine semi-olympique, restaurant, salle de conférence et banquet, parking en sous-sol et environ une centaine de chambres et de suites.
au début, et avant de commencer mon esquisse, j’avais demandé un certificat d’urbanisme a l’APC de Koléa pour savoir quelles étaient les dispositions d’urbanisme applicable au terrain. J’ai été déçu, en découvrant la limite d’hauteur de 5 étages exigé par le POS,
c’est que le terrain ne faisait que 5000 m² et que l’investisseur voulait réaliser son hôtel 4* y compris tout le programme qui va avec, la rentabilité de son investissement était fortement compromise et la seule alternative était d’aller en hauteur.


